RHYALITY IMMERSIVE HALL
EXHIBITION DESIGN
2019








Rhyality Immersive Hall
Work for Dost Architecture GmbH
Neuhausen, Switzerland
Opening 31 July 2020
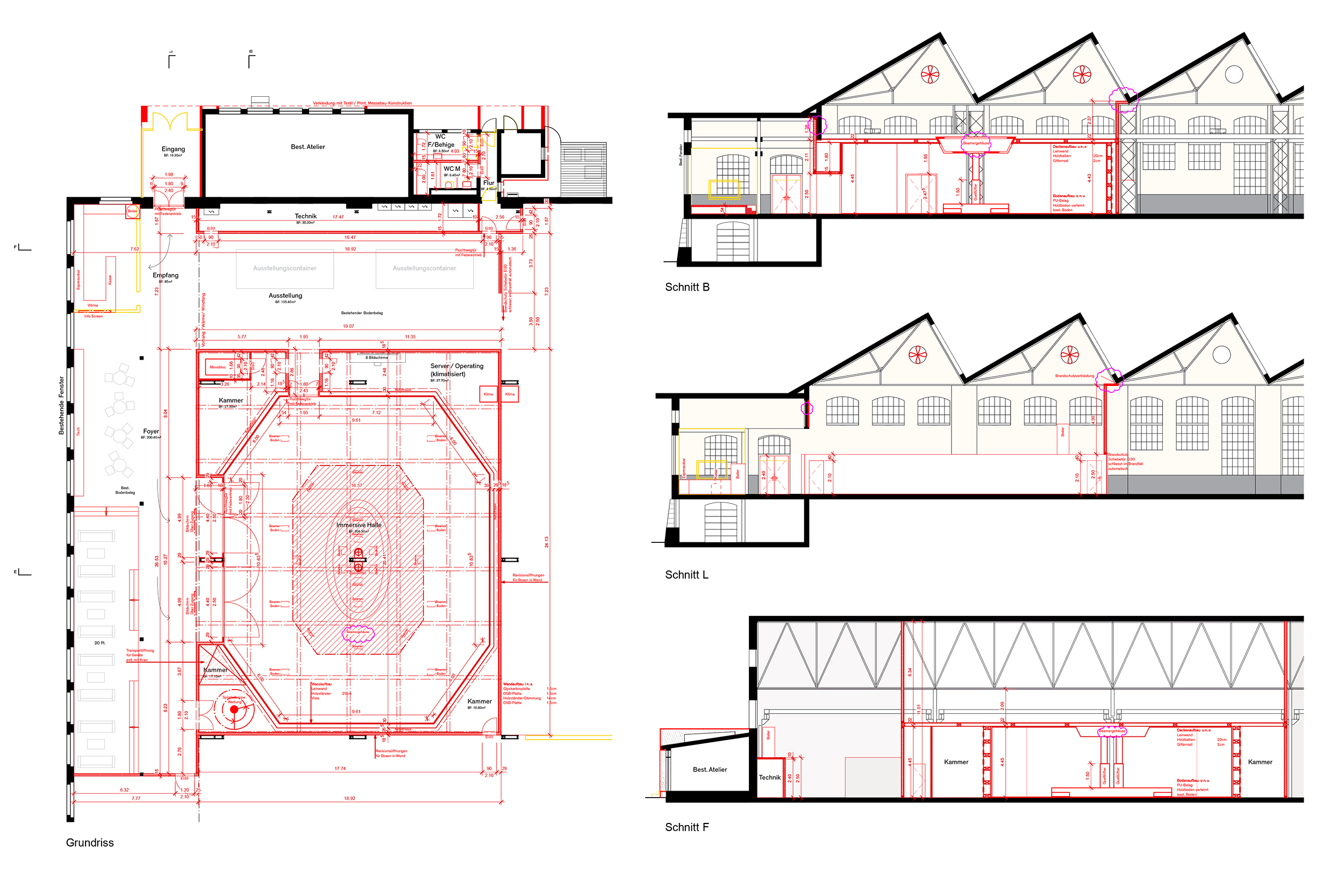
The first Immersive Art Hall in Europe opens in Neuhausen, directly above the Rhine Waterfall. Equipped with the latest sound and projection technology, the brand new venue offers an escape into a fully immersive audiovisual experience of the Rhine Waterfall. The Immersive Hall, set inside a historical production facility right above the waterfall, begins the ambitious transformation of the SIG industrial district in Neuhausen into a hub for culture and research.
Together with Dost Architecture I planned the refurbishment of the industrial hall and designed the add-on volume, which houses the immersive video room.
Project Lead: Julian Tschanen
Photo credits: Rhyality Immersive Art Hall, moduleplus
Work for Dost Architecture GmbH
Neuhausen, Switzerland
Opening 31 July 2020
The first Immersive Art Hall in Europe opens in Neuhausen, directly above the Rhine Waterfall. Equipped with the latest sound and projection technology, the brand new venue offers an escape into a fully immersive audiovisual experience of the Rhine Waterfall. The Immersive Hall, set inside a historical production facility right above the waterfall, begins the ambitious transformation of the SIG industrial district in Neuhausen into a hub for culture and research.
Together with Dost Architecture I planned the refurbishment of the industrial hall and designed the add-on volume, which houses the immersive video room.
Project Lead: Julian Tschanen
Photo credits: Rhyality Immersive Art Hall, moduleplus